Welcome to TLJ Property
Home Omkar Tenaments

Omkar Tenaments (Sell)

RERA 1 BHK,2 BHK

Overview

Property For

Sell

Type

Bunglow / Villa

Unit

Res-91  | Com-0

Floor No

1

Alloted Parking

1

Unit Size

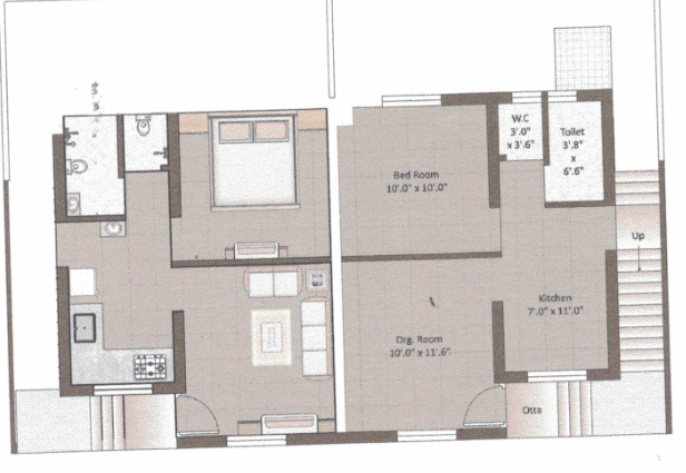
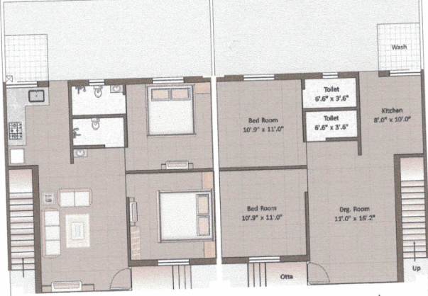
431.7988 & 703.704 Sqft

Property Status

Un-Furnished

BHK

1 BHK,2 BHK

Property Description : Omkar Tenaments

Features & Amenities

Attractive Main Entrance Gate

Compound Wall

Intrnal RCC Road with paver block

LANDSCAPED GARDEN

Multi Purpose Hall

POWER AND WATER SUPLLY

RCC Frame Structure

Street Light

Vitrified Tiles flooring

Water/Heat Proofing

Floor Plans

Schedule a Visit

Contact Us

95224

12% ROI On Property

Maximize your return on investment with a 12% ROI annually on the property starting at 50 Lacs.

Start Listing or Buying a Property With TLJ Property

Talk to our experts or Browse through more properties.

Learn More